Russian Federation
Russian Library and Bibliographic Classification 308
V stat'e predstavlena informaciya ob energoeffektivnyh individual'nyh zhilyh zdaniyah. Otobrazheny nekotorye principy proektirovaniya energoeffektivnyh zdaniy s primeneniem sovremennyh inzhenernyh sistem. Priveden primer teplotehnicheskogo rascheta i racional'noy komponovki energoeffektivnogo zdaniya.
energoeffektivnost', ak- tivnaya energeticheskaya arhitektura, teplotehnicheskiy raschet, zelenoe stroitel'stvo.
По мере увеличения тарифов на энергоносители в Российской Федерации важнейшее
место отводится внедрению в обиход новых энергосберегающих технологий. Такие меры
должны привести к сокращению затрат на эксплуатацию зданий и сооружений, увеличению
сроков службы зданий, улучшению качества жилья, уменьшению вредного воздействия на
окружающую среду. Становится возможным частично заменить тяжелые теплоемкостные
конструкции более легкими и эффективными, что приведет к снижению нагрузок на основания и фундаменты.
Основными показателями являются снижение затрат на эксплуатацию зданий и уменьшение темпов загрязнения окружающей среды.
Стремление сочетать эти факторы делает рациональным применение принципов и под-
ходов активной энергетической архитектуры.
Здание рассматривается как единая энергетическая система, начиная с самых ранних этапов
проектирования. При этом затраты на строительство здания увеличиваются на 10–15%.
Стоимость инженерного обеспечения здания определяется видом устанавливаемого оборудования.
Активная энергетическая, или «зеленая», архитектура — довольно молодое направление в строительстве. Её становление началось в 70–80-е гг. XX в. после очередного энергетического кризиса. Из-за него западному миру пришлось задуматься над проблемами окружающей среды и природных ресурсов. В результате началась активная работа над идеей «зеленого» строительства.
На первый взгляд может показаться, что понятие «зеленая» архитектура - это всего лишь архитектура, приближенная по каким-то параметрам к природе (например, использование экологически чистых строительных материалов), но если изучить этот термин более глубоко, то можно прийти к выводу, что это экономичная, энергоэффективная и экологическая архитектура, которая создается благодаря гармоничному взаимодействию инженерных систем, архитектурно-ландшафтных и конструктивных решений [1; 6].
Существует множество способов создания «зеленого» здания, но при этом оно должно соответствовать следующим факторам:
- во-первых, это правильное местоположение. Подобного рода здания следует строить в таких местах, как, например, бывшие загрязненные промышленные зоны, при условии, что те уже были очищены и восстановлены. Подобного рода постройки будут благоприятно влиять на дальнейшее восстановление окружающей среды в данном месте;
- во-вторых, это энергоэффективность [4; 7], которая сейчас является одним из главных факторов при строительстве любого «зеленого» здания. Этот компонент направлен на использование источников энергии, значительно уменьшающих негативное воздействие на экологическую обстановку, а также на существенное снижение потребляемой энергии здания из сетевых источников (используется в регионах с неблагоприятными климатическими условиями). Как правило, самые большие теплопотери здания происходят через наружную оболочку и систему вентиляции. Возникает проблема повышенного потребления тепловой и электрической энергии. Для её решения важно знать не только, как правильно утилизировать теплопотери внутри здания, но также как обеспечить оптимальное количество тепловой и световой энергии, поступающей в холодное и теплое время года.
В доказательство приведенных выше факторов рассмотрим проект энергоэффективного индивидуального жилого дома, рассчитанного для постоянного проживания семьи из пяти человек в Ростовской области. Перед началом проектирования необходимо тщательно проработать архитектурно-компоновочные решения. Верные компоновочные решения - это уже 60% успеха, ведь именно от правильной ориентации здания по сторонам света зависит, сколько тепла и света будет поступать в жилые помещения.
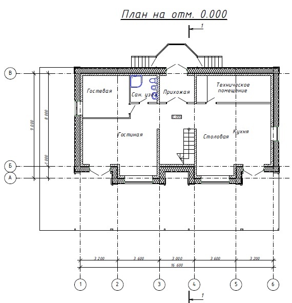
На рис. 1–3 показан пример ориентации здания по сторонам света с расположением светопрозрачных конструкций. Помещения постоянного пребывания членов семьи (спальни, детские, кухня и гостиная) ориентированы на юг, что обеспечивает необходимую инсоляцию, а также возможность принимать максимальное количество солнечной тепловой энергии в зимний период при низком солнце. Избежать перегрева в летний период при высоком солнце позволяют большие свесы крыши (более 1 м) и перголы, расположенные на 1-м этаже. Вспомогательные помещения (санитарные узлы, гардеробные, техническое помещение) ориентированы на север. Для таких помещений характерны маленькие площади светопрозрачных конструкций или вовсе их отсутствие. Это решение обосновывается тем, что именно с северного фасада происходит набольшее количество теплопотерь [5; 8].

Рис. 1. Планы этажей на отметках 0.000 и 3.000

Рис. 2. Генеральный план здания
Рис. 3. Фасады здания

Рис. 4. Разрез здания
Еще одним важным фактором с точки зрения энергоэффективности было устройство под всем зданием технического этажа (рис. 4), в котором располагается обвязка всех инженерных коммуникаций. Кроме того, технический этаж является естественным источником прохлады в летнее время (остужает горячий наружный воздух, подаваемый в помещения) и тепла в зимний период. Еще одной важнейшей функцией технического этажа является утилизация теплопотерь через систему вентиляции в зимний период, позволяющий сохранить тепло внутри здания и передать его наружному воздуху.
После принятия архитектурно-компоновочного решения можно приступать к теплотехническому расчету здания. Следует заметить, что стандартная схема теплотехнических расчетов, приведенная в [9], не в полной мере подходит для проектирования энергоэффективных зданий, так как в ней не отображены такие детали, как:
- поступление суммарной солнечной энергии за календарные месяцы на вертикальные и наклонные поверхности здания [10];
- расчет теплопоступлений через ограждающие конструкции в здание по месяцам [2; 3; 10];
- расчет энергозатрат на горячее водоснабжение, отопление, вентиляцию и кондиционирование;
- учет бытовых теплопоступлений (тепло от электрических приборов, водных процедур, людей и т.д.) [10].
К сожалению, сейчас нет такого програмного комплекса, который позволяет учесть
все необходимые параметры для проведения теплотехнических расчетов для энергоэффективного здания, поэтому воспользуемся программой MSExcel. Результаты расчетов приведены в табл. 1–7.
Таблица 1
Баланс тепловых энергопотоков по месяцам и за год

В табл. 2 отображен расчет теплопотерь через наружные ограждающие конструкции за холодный период года. Для Ростовской области принимаем его равным 9 месяцам, так как в летний период здание не теряет тепло, а, наоборот, набирает его.
Таблица 2
Расчёт теплопотерь через наружные ограждающие конструкции за холодный период

Принимать в расчёт всю сумму теплопоступлений через окна для расчёта необходимой мощности кондиционирования нельзя, так как тепловая энергия поступает в дом в течение дня неравномерно, поэтому для определения необходимой мощности кондиционерной установки необходимо принять только 70% от этой суммы.



В табл. 8 учтены все вышеперечисленные пункты теплотехнического расчета здания. Единицой измерения всех показателей в таблице является [кВт × ч]. Знак «−» означает поступающее в дом тепло. В столбце «Тепловой баланс теплопотерь и теплопоступлений» минусовые значения означают избыточное поступление тепловой энергии в здание, на утилизацию которой необходимо затрачивать энергоресурсы. Знак «+» означает потребность в энергоресурсах, необходимых для нагрева (воздуха, помещений, воды). Значение сопротивлений теплопередаче для стен 8 , для крыши 12 [5].
В ходе несложного математического вычисления, а именно, умножением потребности тепловых энергоресурсов на тариф на электроэнергию, получаем стоимость энергетической эксплуатации здания в год. Как видно из таблицы, больше половины энергозатрат приходится на горячее водоснабжение. Сократить эти затраты можно использованием альтернативных источников энергии (солнечных батарей, тепловых коллекторов, ветрогенераторов) [3]. Следует учитывать, что со стороны государства готовится ряд законопроектов, которые позволят более эффективно использовать такие источники энергии.
Проектирование подобного рода энергоэффективных домов позволяет собственникам жилья отказаться от такого неэкологичного вида топлива, как газ, что, в свою очередь, дает возможность приобретать земельные участки под такие дома по более низким ценам. Еще одинм неоспоримым достоинством энергоэффективного здания является высокий уровень комфортности проживания, связанный с использованием современных высокоэффективных инженерных систем (приточно-вытяжная вентиляция с рекуперацией тепла и влаги и очисткой воздуха, низкотемпературные системы отопления, например теплые полы и стены). Приточно-вытяжная вентиляция с рекуперацией тепла и влаги и очисткой воздуха позволяет сэкономить на кондиционировании здания при наличии калорифера. Нет необходимости покупать дорогостоящие сплит-системы и кондиционеры и платить за их обслуживание.
Вывод. Современный индивидуальный жилой дом может быть энергоэффективным с минимальным потреблением энергоресурсов.
1. Belinskiy S.Ya. Naturnye issledovaniya teploakkumuliruyuschey sposobnosti tipovyh zhilyh zdaniy [Tekst] / S.Ya. Belinskiy, R.S. Harazyan // Teploenergetika. - 1971. - № 10. - S. 17-20.
2. Blazi V. Spravochnik proektirovschika. Stroitel'naya fizika [Tekst] / V. Blazi. - M.: Tehnosfera, 2005. - 536 s.
3. Boguslavskiy L.D. Ekonomicheskaya effektivnost' opti¬mizacii urovnya teplozaschity zdaniy [Tekst] / L.D. Boguslavskiy. - M.: Stroyizdat, 1981.
4. Gasho E.G. Informacionno-metodicheskie i pravovye problemy povysheniya effektivnosti teplosnabzheniya v regionah [Tekst] / E.G. Gasho, O.Yu. Mihaylov // Novosti teplosnabzheniya. - 2002. - № 8. - S. 13-17.
5. Granik Yu.G. Ob'emno-planirovochnye resheniya pri formirovanii novyh tipov energoeffektivnyh zhilyh zdaniy [Tekst] / Yu.G. Granik, A.A. Magay, V.S. Belyaev // Energosberezhenie. - 2003. - № 4. - S. 79-81.
6. Klimov A.M. K raschetu optimal'noy tolschiny teplovoy izolyacii [Tekst] / A.M. Klimov // Izvestiya vuzov. Stroitel'stvo i arhitektura. - 1990. - № 10. - S. 91-93.
7. Perova M.B. Effektivnost' ob'ektov netradicion¬noy elektroenergetiki [Tekst]: monografiya / M.B. Perova, Yu.V. Voropanova. - Staryy Oskol: TNT, 2004. - 152 s.
8. SP 55.13330.2011 Doma zhilye odnokvartirnye. Aktua¬lizirovannaya redakciya SNiP 31-02-2001, M.: Gosstroy Rossii, 2011.
9. SP 50.13330.2012 «Teplovaya zaschita zdaniy». Aktuali¬zirovannaya redakciya SNiP 23-02-2003. [Tekst]. - M.: Minregion Rossii, 2012.
10. Fokin K.V. Stroitel'naya teplotehnika ograzhdayuschih chastey zdaniy [Tekst] / K.V. Fokin. - M.: AVOK-PRESS, 2006. - 252 s.




