Новочеркасск, Россия
Россия
Россия
В последнее время все больше внимания уделяется потенциальным преимуществам BIM в строительстве. Эффективное общение между участниками на всех этапах жизненного цикла зданий стало серьезной проблемой в мировой индустрии. Внедрение информационного моделирования строительных объектов (BIM) было признано продуктивным подходом к решению этой проблемы. Обзор литературы определил ключевые проблемы, связанные с использованием и внедрением BIM. В данной статье представлено проектирование производственного здания (архитектурных, конструктивных, организационно-технических решений) с использованием четырех программных комплексов, показан практический опыт оптимизации строительства цеха на основе данных информационной модели здания.
строительство, информационное моделирование зданий, BIM в строительстве, моделирование, преимущества BIM, оптимизация календарного графика
Во всем мире строительная отрасль заинтересована в новых технологиях, обеспечивающих эффективность, точность и экономию времени при проектировании. Благодаря информационному моделированию зданий (BIM) возможно четкое взаимодействие и интеграция между проектировщиками проекта и другими участниками, такими как инженеры, архитекторы и т.д. Все это потенциально снижает риски неправильного представления и недостатка информации и помогает избежать перепланирования и задержек в реализации проекта [1].
В последнее время все больше внимания уделяется потенциальным преимуществам информационного моделирования зданий в строительстве [2]. Однако процесс внедрения новой технологии сопряжен с множеством проблем, и производительность новой технологии может быть снижена, если во время внедрения присутствуют неустановленные факторы риска. Полное понимание факторов риска может позволить пользователям BIM своевременно реагировать на потенциальные риски, тем самым увеличивая вероятность успешного внедрения BIM [3].
По мере того, как внедрение информационного моделирования зданий (BIM) становится повсеместным, а уровень его применения повышается, потребность во включении предметно-ориентированных знаний в инструменты разработки BIM также возрастает. Существуют исследования о факторах оценки инвестиционной стоимости BIM [5]. Различные функции BIM используются на протяжении всего жизненного цикла проекта. При переходе от постоянного лицензирования к ежегодной оплате программного обеспечения эксплуатационные расходы оказываются выше, чем первоначальные затраты на приобретение. Поскольку различные функции BIM используются на протяжении всего жизненного цикла проекта, то, сокращение периода строительства улучшение имиджа компании и т.п., должны быть преобразованы в финансовую выгоду.
Потенциал информационного моделирования реализован не полностью, существуют препятствия при внедрении BIM [6]. В исследовании [7] приведен анализ который выявил некоторые основные факторы для всех препятствий, а именно: опыт и возможности, технические условия, инерцию системы, изменение рабочих процедур и риски внедрения.
Процесс использования BIM для решения практических задач в строительстве становится ключевым моментом для игроков строительной отрасли [8]. Для этого разрабатываются образовательные модули, предназначенные для поддержки и улучшения пространственного понимания, взаимодействия и коммуникации в рамках строительного образования и обучения [9]. Некоторые исследования описывают степень осведомленности и принятия BIM и BIM-образования среди образовательных организаций, проектировщиков и крупных девелоперов [10, 11, 12].
Компьютеризация повысила скорость и точность проектирования в строительной отрасли [13]. Существующие программные комплексы, например, такие как AutoCAD Architecture, Navisworks Manage, Advance Steel, Autodesk Revit, Renga, Civil 3D и т.д. быстро находят применение в строительной индустрии.
Особенность моделирования строительных объектов со сложными пространственными формами с использованием BIM-технологий показывает значительное сокращение трудовых ресурсов на проектирование [14]. Информационное моделирование объединяет в себе данные по архитектурным, экономическим и инженерным решениям, дизайнерским решениям и эксплуатации [15]. BIM позволяет нескольким специалистам одновременно работать над одним проектом, быстро обмениваться информацией о проекте и вносить коррективы [16].
Сокращение сроков изготовления при сохранении стоимости конечного продукта - главный вопрос строительства. Решить эту проблему можно путем разработки сетевых и календарных графиков с поточной организационно-технологической схемой работы, составом бригад, оптимальными технологическими решениями. Эффективность применяемых методов оптимизации по времени и ресурсам зависит от технологических и организационных параметров проектируемого здания или сооружения [17].
Для контроля за действиями участников строительного процесса и временем их выполнения составляется календарный план, занимающий особое место в комплексе задач планирования и управления строительством. Календарный план — это документ в структуре строительного проекта, который определяет сроки выполнения работ и их график. На основании данных календарного плана контролируется ход работ и координируется работа исполнителей. Сроки, рассчитанные в календарном плане, берутся за основу для более детальной обработки данных, например, в недельных и ежедневных расписаниях и сменных задачах.
Для улучшения качества и ускорения процесса разработки календарных графиков применяются автоматизированные системы управления, такие как: MS Project, Primavera, GranttProject, ProjectLibre, Spider Project, Autodeck Nevisworks Manage.
Апробация системы информационного моделирования была проведена на BIM проектировании производственного здания в ПК Autodesk Revit. Промышленное здание – строящийся производственный цех в сейсмическом районе респ. Ингушетия (расчетная сейсмичность площадки строительства – 8 баллов).
Производственный цех запроектирован одноэтажным, без подвала, коридорного типа, прямоугольной конфигурации в плане с размерами в осях 27,0х81,0м. К производственному цеху примыкает здание АБК. Здание АБК двухэтажное, без подвала, коридорного типа, прямоугольной конфигурации в плане с размерами в осях 12,0х27,0м.
Высота помещений производственного цеха – 5,8м. Высота этажей АБК – 3,2м. Сообщение между этажами здания АБК осуществляется через лестничную клетку в осях «15/1-16»/«А-А/1».
На первом этаже АБК располагаются: пост охраны, гардеробно-душевые блоки для мужчин и женщин, пищевой блок, кладовая уборочного инвентаря. На втором этаже располагаются: кабинеты и подсобные помещения для персонала.
Наружные стены производственного цеха выполнены из сэндвич – панелей. Перегородки выполнены из профилированного листа с заполнением минераловатными плитами.
Наружные стены здания АБК кирпичные, толщиной 380мм.
Внутренние стены из полнотелого керамического кирпича толщиной 380мм.
Перегородки выполнены из полнотелого керамического кирпича толщиной 120 и 250мм на цементно-песчаном растворе.
Кровля промышленного цеха здания запроектирована двухскатная из сэндвич-панелей поэлементной сборки с минераловатным утеплителем t=100мм толщиной и покрытием из профилированного листа по металлическим прогонам, с организованным наружным водостоком.
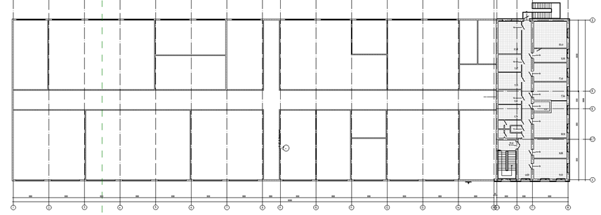
На рис. 1 – рис. 6 приведены видовые экраны из программы Autodesk Revit со зданием производственного цеха и АБК.

Рис, 1. План 1 этажа здания

Рис. 2. План 2 этажа здания

Рис. 3. Фасад 1-18

Рис. 4. Фасад 18-1

Рис. 5. Фасады боковые: а – фасад А-Д, б – фасад Д- А

Рис. 6. Общий 3d вид
Информационная модель каркаса из Autodesk Revit была перенесена в ПК Autodesk Advance Steel. Autodesk Advance Steel имеет широкую базу встроенных параметрических узлов соединений, существует возможность присвоения материала конструкциям, покрытия, названия марки КМ и т.д. Автоматическое построение типовых узлов повышает качество работы и ее скорость. На рис. 7 – рис. 9 представлены видовые экраны из программы Autodesk Advance Steel.

Рис. 7. Несущий каркас по осям 1-18

Рис. 8. Несущий каркас по осям А- Д

Рис. 9. Общий вид металлоконструкций каркаса
При помощи программы Autodesk Advance Steel были выполнены чертежи марки КМ и КМД, рассчитаны спецификации металлов.
Для обоснования принятых материалов и сечений, модель была интегрирована в расчетный комплекс Structure Cad. Исходные данные для расчета показаны на рис. 9, рис. 10.
Рис. 9. Жесткости и связи элементов


Рис. 10. Схема нагрузок на каркас
Были рассмотрены следующие загружения: загружение 1 – постоянная нагрузка от собственного веса несущих конструкций (рис.11, а); загружение 2 – постоянные нагрузки от собственного веса ограждающих конструкций (рис. 11, б); загружение 3 – полезная нагрузка (временная); загружение 4 – снеговая нагрузка полная; загружение 5 – снеговая нагрузка справа; загружение 6 – снеговая нагрузка слева; загружение 7,8 – средняя составляющая ветрового давления; загружение 9,10 – ветровая нагрузка с учетом пульсаций; загружение 11 – сейсмика по Х; загружение 12 – сейсмика по У.
Для оценки наиболее неблагоприятной комбинаций загружений в программном комплексе реализована система РСУ (расчетные сочетания усилий), предназначенная для вычисления перемещений в узлах и усилий (напряжений) в элементах от стандартных и произвольных линейных комбинаций загружений. Под стандартными линейными комбинациями подразумеваются комбинации (сочетания), которые установлены нормативными документами.
Результаты расчета представлены на рис. 12 (перемещения по осям), рис. 13 (внутренние усилия), 14 (коэффициенты использования).

Рис. 11. Схемы нагружения: а – постоянной нагрузкой от несущих конструкций, б – снеговой нагрузкой справа

в)
Рис. 12. Перемещения, мм по осям: а – Х, б – У, в - Z

Рис. 13. Цветовая схема распределения внутренних усилий, т: а – N, б - Qz

Рис. 14. Коэффициенты использования элементов конструкций
Далее были рассчитаны трудоемкость работ и затраты времени – табл.1. Объем работ взят из информационной модели здания, запроектированного в Autodesk Revit, при помощи макроса Сметная система АВС.
Расчет трудоемкости и затрат времени на специальные работы приведен в табл.–2.
Таблица 1.
Трудоемкость и затраты времени на общестроительные работы.
|
№ |
Наименование работ |
Ед. изм. |
Кол-во |
Норма чел.-час. |
Норма Маш.-час. |
Чел.-дн. |
Маш.- |
Обоснование |
|
см |
||||||||
|
1 |
2 |
3 |
4 |
5 |
б |
7 |
8 |
10 |
|
1 |
Отрывка котлована |
1000 м3 |
2,22 |
- |
40,71 |
- |
11,3 |
ГЭСН 01-01-008-09 |
|
2 |
Устройство столбчатого фундамента |
100 м2 |
1,95 |
598,26 |
18,62 |
145,82 |
4,54 |
ГЭСН 06-01-001-13 |
|
3 |
Устройство сборных ленточных фундаментов |
100 шт. |
1,08 |
91,58 |
31,26 |
12,36 |
4,22 |
ГЭСН 07-01-001-02 |
|
4 |
Обратная засыпка грунта |
100 м3 |
17,99 |
121 |
- |
272,09 |
- |
ФЕР 01-02-061-03 |
|
5 |
Монтаж стальных колонн |
1 т |
22,75 |
5,24 |
0,92 |
14,9 |
2,62 |
ГЭСН 09-03-002-03 |
|
6 |
Монтаж связей |
1 т |
3,25 |
63,28 |
3,82 |
25,7 |
1,55 |
ГЭСН 09-03-014-01 |
|
7 |
Монтаж фахверковых колонн |
1 т |
1,69 |
28,34 |
2,91 |
5,98 |
0,61 |
ГЭСН 09-04-006-01 |
|
8 |
Монтаж стропильных ферм |
1 т |
45,6 |
19,76 |
3,43 |
112,63 |
19,55 |
ГЭСН 09-03-012-04 |
|
9 |
Устройство стеновых панелей |
100 м2 |
29.69 |
170,24 |
34,58 |
631,8 |
128,33 |
ГЭСН 09-04-006-04 |
|
10 |
Устройство ворот |
100 шт. |
0.06 |
1940.2 |
108.87 |
14,55 |
0,1 |
ГЭСН 07-01-055-01 |
|
11 |
Устройство окон |
100 м2 |
3,.76 |
216,08 |
1,76 |
101,56 |
0,83 |
ГЭСН 10-01-034-03 |
|
12 |
Монтаж перегородок на металлическом каркасе |
100 м2 |
12,99 |
220,18 |
0,55 |
357,52 |
0,89 |
ГЭСН 10-04-009-01 |
|
13 |
Устройство дверей |
100 м2 |
16.22 |
220,04 |
1,66 |
446,13 |
0,42 |
ГЭСН 10-01-047-03 |
|
14 |
Устройство кирпичных стен |
1 м3 |
219,75 |
7,12 |
0,44 |
195,78 |
12,07 |
ГЭСН 08-02-015-05 |
|
15 |
Устройство кирпичных перегородок |
100 м2 |
50.59 |
170.17 |
4,11 |
1076,11 |
25,99 |
ГЭСН 08-02-002-03 |
|
16 |
Устройство сборных железобетонных перекрытий |
100 шт. |
0.67 |
223,11 |
31,98 |
18,68 |
2,68 |
ГЭСН 07-01-006-06 |
|
17 |
Устройство металлической лестницы |
1 т |
0.34 |
44,36 |
10,05 |
1,88 |
0,43 |
ГЭСН 39-01-009-05 |
|
18 |
Устройство плоской кровли |
100 м2 |
3,39 |
14.36 |
0.2 |
6,08 |
0,08 |
ГЭСН 12-01-002-09 |
|
19 |
Устройство двухскатной кровли |
100 м2 |
23,44 |
45,2 |
9,74 |
132,44 |
28,54 |
ГЭСН 09-04-002-03 |
|
20 |
Устройство пола |
100 м2 |
26,23 |
81,31 |
2,93 |
299,38 |
9,6 |
ГЭСН 11-01-027-01 |
|
21 |
Отделка стен плиткой |
100 м2 |
3,96 |
270 |
1,32 |
133,65 |
0,65 |
ГЭСН 15-01-016-02 |
|
22 |
Окраска стен краской |
100 м2 |
2,37 |
42,9 |
0,02 |
12,71 |
0,006 |
ГЭСН 15-04-005-03 |
Таблица 2.
Трудоемкость и затраты времени на специальные работы.
|
№ п/ |
Наименование работ |
% от общей трудоёмкости |
Трудоёмкость, чел. – час. |
|
1 |
Работы подготовительного периода |
6 |
224,76 |
|
2 |
Водопровод и канализация |
10 |
374,60 |
|
3 |
Отопление и вентиляция |
10 |
374,60 |
|
4 |
Электроснабжение |
5 |
187,30 |
|
5 |
Слаботочные сети и устройства |
3 |
112,38 |
|
6 |
Благоустройство территории |
5 |
187,30 |
|
7 |
Прочие неучтённые работы |
25 |
936,51 |
|
8 |
Подготовка к сдаче объекта |
0,5 |
18,73 |
На основании результатов расчета продолжительности был построен график производства работ (рис. 14). Продолжительность работ составила 171 день.

Рис. 14. Календарный график до оптимизации
Для оптимизации календарного графика изменена организационно-технологическая схема производства работ (рис. 15). При этом продолжительность строительства сократилась до 148 дней (13,5%).

Рис. 15. Календарный график после оптимизации
В ходе данного исследования была построена информационная модель промышленного здания в ПК Autodesk Revit, детально проработан несущий стальной каркас в ПК Autodesk Advance Steel, произведен расчет в ПК StructureCad. Также разработан календарный график работ и выполнена его оптимизация, благодаря которой получилось сократить продолжительность строительства на 13,5%.
1. Sávio Santana Martins, Ana Catarina Jorge Evangelista, Ahmed W. A. Hammad, Vivian W. Y. Tam & Assed Haddad (2020) Evaluation of 4D BIM tools applicability in construction planning efficiency, International Journal of Construction Management, DOI:https://doi.org/10.1080/15623599.2020.1837718.
2. Пученков И.С., Евтушенко С.И. Создание Информационной модели здания в среде общих данных // Строительство и архитектура. - 2021. - Т. 9, Вып. 1 (30). - С. 46-50. DOI:https://doi.org/10.29039/2308-0191-2021-9-1-46-50
3. Alireza Ahankoob, Karen Manley & Behzad Abbasnejad (2019) The role of contractors’ building information modelling (BIM) experience in realising the potential values of BIM, International Journal of Construction Management, DOI:https://doi.org/10.1080/15623599.2019.1639126/
4. Shilov L., Evtushenko S., Arkhipov D., Shilova L. The prospects of information technology using for the analysis of industrial buildings defects // (2021) IOP Conf. Series: Materials Science and Engineering 1030 (1) 012039 DOIhttps://doi.org/10.1088/1757-899X/1030/1/012039
5. Chien, K.-F., Z.-H. Wu, and S.-C. Huang. 2014. “Identifying and Assessing Critical Risk Factors for BIM Projects: Empirical Study.” Automation in Construction 45: 1-15. DOI:https://doi.org/10.1016/j.autcon.2014.04.012.
6. Евтушенко С.И., Шилова Л.А., Улесикова Е.С., Кучумов М.А. Информационное моделирование тоннеля метро с противовибрационными мероприятиями // Наука и бизнес: пути развития, 2019, №10 (100), С. 29-35
7. Manav Mahan Singh, Anil Sawhney & André Borrmann (2019) Integrating rules of modular coordination to improve model authoring in BIM, International Journal of Construction Management, 19:1, 15-31, DOI:https://doi.org/10.1080/15623599.2017.1358077.
8. Чутченко С.Г., Евтушенко С.И., Джулай Н.А. Разработка организационно технологических решений при реконструкции водоочистных сооружений // Строительство и архитектура. - 2021. - Т. 9, Вып. 2 (31). - С. 26-30. DOI:https://doi.org/10.29039/2308-0191-2021-9-2-26-30
9. Chutchenko S.G., Subbotin A.I., Shutova M.N., Evtushenko S.I. Methods for managing the construction organization’s competitiveness, the stability of their functioning and development in the conditions of Russian regions / CATPID-2020 // (2020) IOP Conf. Series: Materials Science and Engineering 913 (5) 052020 DOI:https://doi.org/10.1088/1757-899X/913/5/052020
10. Hyeon-Seung Kim, Sung-Keun Kim & Leen-Seok Kang (2021) BIM performance assessment system using a K-means clustering algorithm, Journal of Asian Architecture and Building Engineering, 20:1, 78-87, DOI:https://doi.org/10.1080/13467581.2020.1800471.
11. Oluseye Olugboyega & Abimbola Windapo (2021) Modelling the indicators of a reduction in BIM adoption barriers in a developing country, International Journal of Construction Management, DOI:https://doi.org/10.1080/15623599.2021.1988196.
12. Xiaozhi Ma, Amos Darko, Albert P. C. Chan, Rong Wang & Boyu Zhang (2020) An empirical analysis of barriers to building information modelling (BIM) implementation in construction projects: evidence from the Chinese context, International Journal of Construction Management, DOI:https://doi.org/10.1080/15623599.2020.1842961.
13. Dong Zhao, Andrew P. McCoy, Tanyel Bulbul, Christine Fiori & Parisa Nikkhoo (2015) Building Collaborative Construction Skills through BIM-integrated Learning Environment, International Journal of Construction Education and Research, 11:2, 97-120, DOI:https://doi.org/10.1080/15578771.2014.986251.
14. Caroline Clevenger PhD, Scott Glick PhD, LEED AP & Carla Lopez del Puerto PhD (2012) Interoperable Learning Leveraging Building Information Modeling (BIM) in Construction Education, International Journal of Construction Education and Research, 8:2, 101-118, DOI:https://doi.org/10.1080/15578771.2011.647249.
15. Euisoon Ahn & Minseok Kim (2016) BIM Awareness and Acceptance by Architecture Students in Asia, Journal of Asian Architecture and Building Engineering, 15:3, 419-424, DOI:https://doi.org/10.3130/jaabe.15.419.
16. Аминов Р.Р. BIM-моделирование. Autodesk BIM 360 и Autodesk Revit, основные преимущества и недостатки // Информационные и графические технологии в профессиональной и научной деятельности : Сборник статей III Международной научно-практической конференции, Тюмень, 30 октября 2019 года / отв. ред. Н. И. Красовская. - Тюмень: Тюменский индустриальный университет, 2019. - С. 145-147.
17. Wael Abdelhameed (2018) BIM in architecture curriculum: a case study, Architectural Science Review, 61:6, 480-491, DOI:https://doi.org/10.1080/00038628.2018.1483888.
18. Боков С.С., Илларионова Л.А. Интегрирование BIM-технологий в периоды жизненного цикла строительства // Современные проблемы совершенствования работы железнодорожного транспорта : Межвузовский сборник научных трудов. - Москва: Федеральное государственное автономное образовательное учреждение высшего образования "Российский университет транспорта", 2021. - С. 382-389.
19. Голдобина Л.А. Моделирование пространственных конструкций в Autodesk Revit // BIM-моделирование в задачах строительства и архитектуры: Материалы IV Международной научно-практической конференции, Санкт-Петербург, 21-23 апреля 2021 года / Под общей редакцией А.А. Семенова. - Санкт-Петербург: Санкт-Петербургский государственный архитектурно-строительный университет, 2021. - С. 120-127. - DOI:https://doi.org/10.23968/BIMAC.2021.015.
20. Анохина О.А., Волкова Л.В. Развитие технологии BIM в России // Инновационные методы организации строительного производства: Материалы Всероссийской научно-практической конференции, Санкт-Петербург, 18-19 ноября 2021 года. - Санкт-Петербург: Санкт-Петербургский государственный архитектурно-строительный университет, 2021. - С. 74-77.
21. Бекирова О.Н., Малютина А.Н. Преимущества использования и трудности внедрения BIM-технологий в современном строительстве // Управление строительством. - 2019. - № 3(16). - С. 110-119.
22. Олейник П., Юргайтис А., Воронина Г., Макаренко А. Способы формирования и оптимизации календарных планов строительных компаний, MATEC Web of Conferences 251, 05037 (2018), DOI:https://doi.org/10.1051/matecconf/201825105037 IPICSE-2018.
23. Chassiakos A.P., Sakellaropoulos S.P. Time-cost optimization of construction projects with generalized activity constraints //Journal of Construction Engineering and Management. - 2005. - Т. 131. - №. 10. - С. 1115-1124., DOI:https://doi.org/10.1061/(ASCE)0733-9364(2005)131:10(1115).



