Москва, г. Москва и Московская область, Россия
Россия
УДК 531 Общая механика. Механика твердых тел
УДК 624 Строительные конструкции. Подземное строительство. Земляные работы. Фундаменты, основания и их устройство. Строительство тоннелей. Строительство мостов. Строительство наземных сооружений
Известно, что аутригерная технология дает возможность строителям, проектировщиками и другим участникам строительного процесса проектировать и возводить устойчивые высотные и другие виды зданий разнообразных форм. Аутригерные системы, принципиально, - могут быть горизонтальными, диагональными, двухэтажными или без опоясывающих ферм или вертикальных связей. Конструкция для каждого типа зданий уникальна, а в зависимости от расположения по высоте – может быть разной в пределах одного объекта. Аутригерные этажи помогают перераспределять нагрузку между ядром и несущими элементами и конструкциями. Даже если здание оказывается подверженным одномоментному деструктивному воздействию (например удару) — последствия могут быть сведены к минимуму. В работе рассмотрено влияние одноэтажного железобетонного аутригера расположенного на 13 этаже 25 этажного здания в Московской области России на воздействие ветровой нагрузки.
ядро жесткости. железобетонный каркас, аутригер, метод конечных элементов, лестнично-лифтовый узел, расчетная схема, сбор нагрузок, снеговая нагрузка, ветровая нагрузка
В данной статье рассмотрено влияние введение аутригерного этажа на здание с железобетонным каркасом.
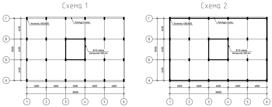
Здание имеет 25 надземных этажей высотой 3 метра и 1 подземный этаж той же высоты, габариты здания в плане 30х20 м. Вертикальными несущими элементами являются колонны сечением 400х800 мм. и стены толщиной 200 мм. Стены, расположенные на типовом этаже, располагаются вокруг лестнично-лифтового узла и образуют ядро жесткости. Для данной конструктивной системы были определены собственные и вынужденные частоты колебаний, горизонтальные перемещения, и усилия в вертикальных элементах. Далее в расчетную схему были введены дополнительные диафрагмы жесткости согласно плану несущих элементов, представленном на рис. 1. Нагрузки, учитываемые при расчете приведены в сборе нагрузок.

Рис. 1. Схема 1- план несущих конструкций типового этажа обеих конструктивных систем. Схема 2- план несущих конструкций 13-го этажа 2-го варианта конструирования.
Сбор нагрузок
Нагрузка от собственного веса железобетонных конструкций была задана автоматически, с учетом коэффициента надежности по нагрузке gf =1.1.
Сбор нагрузок от собственного веса полов здания представлен в таблице 1.
Нагрузка от веса полов.
Таблица 1.
|
Нагрузки на перекрытия |
|||||
|
№ п/п |
Наименование, толщина слоя, мм |
Вид нагрузки |
Нормативная нагрузка, кПа |
gf |
Расчетная нагрузка, кПа |
|
1 |
Керамогранитная плитка, 10 |
Постоянная |
0,24 |
1,2 |
0,29 |
|
2 |
Клеевая основа, 5 |
Постоянная |
0,09 |
1,3 |
0,12 |
|
3 |
Цементно-песчанная стяжка, 35 |
Постоянная |
0,63 |
1,3 |
0,82 |
|
|
Итого |
|
0,96 |
1,28 |
1,23 |
Нормативное значение полезной нагрузки на типовой этаж здания принято согласно таблице 8.3 СП 20.13330.2016 равному Pt = 1.5 кПа. С учетом коэффициента надежности по нагрузке gf =1.3 (пункт 8.2.7 СП 20.13330.2016) расчетное значение полезной нагрузки принимается равным 1.95 кПа.
Полезная нагрузка прикладывается к плите покрытия как равномерно распределенная.
Нормативное значение снеговой нагрузки определяется по формуле 10.1 СП 20.13330.2016:
![]()
где:
μ- коэффициент формы;
се – коэффициент учитывающий снос снега с покрытия;
сt – термический коэффициент;
Sg – Нормативное значение веса снегового района (для Москвы принимается 1.5 кН);
Расчетное значение снеговой нагрузки с учетом коэффициента надежности по нагрузке gf =1.4 (пункт 10.12 СП 20.13330.2016) принимается равным 2.1 кН.
Снеговая нагрузка прикладывается к плите покрытия как равномерно распределенная.
Ветровая нагрузка
Согласно современным нормативным документам, полная ветровая нагрузка на здание складывается из средней wm и пульсационной wg составляющей.
Значение средней ветровой нагрузки определяется по формуле 11.2 СП 20.13330.2016:
![]()
Где:
w0 – нормативное значение ветрового давления (для Москвы 0.23 кПа);
с- аэродинамический коэффициент (принимаемый равным для наветренной и подветренной стороны 0.8 и 0.5)
k(ze) – коэффициент учитывающий изменение ветрового давления по высоте, определяется по формуле 11.3 СП 20.13330.2016:
![]()
Коэффициенты k10 и a принимаются по таблице 11.3 СП 20.13330.2016 в зависимости от типа местности (принимаем тип местности В).
Коэффициент ze принимается согласно пункту 11.1.5 СП 20.13330.2016 случай В.
Расчетное значение ветровой нагрузки с учетом коэффициента надежности gf =1.4 для различных высот представлены в таблице 2.
Значение ветровой нагрузки.
Таблица 2.
|
Зона действия нагрузки |
Ze |
Wm при с=0.8, кПа |
Wm при с=0.8, кПа |
|
0 < H < 31.5 м |
30 |
1,08 |
0,67 |
|
31.5 м < H < 34.5 м |
33 |
3,31 |
2,07 |
|
34.5 м < H < 37.5 м |
36 |
6,32 |
3,95 |
|
37.5 м < H < 40.5 м |
39 |
10,22 |
6,38 |
|
40.5 м < H < 43.5 м |
42 |
15,09 |
9,43 |
|
43.5 м < H < 47.5 м |
45 |
21,05 |
13,16 |
|
47.5 м < H < 75 м |
75 |
68,83 |
43,02 |
Общая схема действия ветровой нагрузки показана на рис. 2.

Рис. 2. Схема распределения ветровой нагрузки.
Значение средней составляющей ветровой нагрузки умножается на грузовую площадь и прикладывается к торцевым узлам плит перекрытия. Для корректного учета полной ветровой нагрузки (в том числе пульсационной) необходимо назначить тип нагрузки для средней составляющей «Неактивное», далее необходимо создать динамическое загружение и назначаем параметры пульсационной нагрузки. Далее присваиваем для динамического загружения тип «Мгновенное». В таком случае полная ветровая нагрузка учитывается корректно программным комплексом при расчете.
Давление грунта на стены подземной части здания
Боковое давление грунта (расчетное значение) на наружные стены подземной части здания при нагрузке на поверхность земли у стен здания р=10 кН/м2.

Рис. 3. К определению бокового давления грунта на стены подземной части здания Объемный вес насыпного грунта составляет gгр=18 кН/м3, угол внутреннего трения j=300.
Высота приведенного слоя грунта: Нпр= р/gгр=10/18=0,56 м,
Верхнее значение на трапециевидной эпюре бокового давления грунта: qв = gf ×gгр× Hпр × tg2 (45°- j /2) =1,15×18×0,56×0,33=3,83 кН/м2,
Нижнее значение на трапециевидной эпюре бокового давления грунта:
qн = gf× gгр ×(Hпр+Нгр)×tg2 (45°- j /2) =1,15×18×(2,5+0,56)× 0,33=20,9 кН/ м2
Давление грунта прикладывается к стенам подвала трапециевидной нагрузкой.
После приложения всех нагрузок в программном комплексе необходимо задать Таблицы расчетного сочетания нагрузок (РСН) и расчетного сочетания усилий (РСУ). Таблица РСУ генерируется автоматически с учетом коэффициентов сочетаний для различных типов нагрузки. Согласно нормативно-технической документации, коэффициент сочетания для постоянных нагрузок равен Ψ=1.0, коэффициент сочетания для длительных нагрузок равен Ψ=1.0 для основной по влиянию нагрузки и Ψ=0.95 для остальных. Коэффициенты сочетаний для кратковременных нагрузок равен Ψ=1.0 для основной по влиянию нагрузки, Ψ=0.9 для второй и Ψ=0.7 для остальных нагрузок. Помимо сочетаний нагрузок необходимо назначить группы взаимоисключающих нагрузок, в данном случае взаимоисключающими являются ветровые воздействия, действующие в разных направлениях.
Таблица РСН составляется вручную. Главное ее отличие от таблицы РСУ является, то что РСН используют для определения перемещений. Так как перемещения определяются от нормативных нагрузок, а мы задавали их расчетными необходимо коэффициенты сочетания нагрузок разделить на коэффициенты надежности по нагрузке.
Перед расчетом необходимо упаковать схему, чтобы исключить возможные удвоения узлов и элементов.
Для определения собственных частот колебаний был проведен модальный анализ. В результате расчета были получены частоты для 10 форм колебаний. Результаты представлены в таблице 3.
Значения частот и периодов собственных колебаний для обоих вариантов конструирования.
Таблица 3.
|
№ формы колебаний |
1 |
2 |
3 |
4 |
5 |
6 |
7 |
8 |
9 |
10 |
|
Частота колебаний Первой схемы Гц. |
0.241
|
0.252
|
0.503
|
1.145
|
1.207
|
1.489
|
2.423
|
2.750
|
2.854
|
2.881
|
|
Частота колебаний Второй схемы с. |
0.279 |
0.280 |
0.510 |
1.140 |
1.200 |
1.505 |
2.471 |
2.833 |
2.902 |
2.940 |
На рис. 4 представлены основные формы колебаний для первого варианта конструирования (2 поступательные в перпендикулярных направлениях и 1 крутильная). Зеленным цветом показано изначальное положение конструкции, розовым в момент максимальных перемещений. Формы колебаний для второго варианта конструирования соответствуют тем, что указаны на рис. 4.
Рис. 4. Основные формы колебаний. Значение частот для данных форм колебаний смотри в таблице 1 (слева направо соответственно 1, 2 и 3)
Путем расчета методом конечных элементов были получены ускорения различных элементов здания, а также усилия в элементах и горизонтальные перемещения.

Рис. 5. Горизонтальные перемещения зданий (слева 1-ый вариант конструирования, справа 2-ой вариант конструирования).
На рис. 5 показаны перемещения двух конструктивных схем, расчетом были получены значения 6130 мм. для первого случая и 4880 мм. для второго случая. Как видим введение аутригерного этажа снизило горизонтальные перемещения на 21%.


Рис. 6. Изгибающий момент в колоннах 1-го этажа. (сверху 1-ый вариант конструирования, снизу 2-ой вариант конструирования).
На рис. 6 показаны перемещения двух конструктивных схем, расчетом были получены значения 5790 kNм. для первого случая и 5260 kNм. для второго случая. Разница в усилиях составляет около 12%.
Расчетом также были определены ускорения верхнего этажа зданий, для первой конструктивной системы максимальное ускорение равно 10,46 м/с2, для второй системы 10.12 м/с2. То есть аутригерный этаж не оказал существенного влияния ускорения зданий.


Рис. 7. Продольное усилие в колоннах 1-го этажа. (сверху 1-ый вариант конструирования, снизу 2-ой вариант конструирования). Синим цветом показаны сжатые колонны, оранжевым растянутые.
На рис. 7 показаны продольные усилия в колоннах первого этажа, максимальное сжимающее усилие в первом варианте составляет 78500 кN, во втором варианте 67900 kN. То есть продольное усилие уменьшилось на 13.5%.
Выводы.
- Введение аутригерного этажа в конструкцию многоэтажного здания позволяет сократить значение внутренних усилий в вертикальных элементах зданий, а также уменьшить значения горизонтальных перемещений.
- Аутригерный этаж существенно повышает устойчивость здания к прогрессирующему обрушению.
1. Гордееев В.Н., Лантук-Дященко А.И., Пашинский В.А., Перельмутер А.В., Пичугин С.Ф. Нагрузки и воздействия на здания и сооружения. M.: ASV, 2007. 482 с.
2. Лычев А.С. Надежность строительных конструкций. M.: АСВ, 2008. 184 с.
3. Райзер В.Д. Теория надежности в строительном проектировании. M.: АСВ, 1998. 304 с.
4. Барштейн М.Ф. Динамический расчет высоких сооружений на действие ветра. Справочник по динамике сооружений. M.: Стройиздат, 1972. С. 286-321.
5. Барштейн М.Ф. Руководство по расчету зданий и сооружений на действие ветра M.: Стройиздат,1978. 120 с.
6. Беспрозванная И.М., Соколов А.Г., Фомин Г.М. Воздействие ветра на высокие сплошностенчатые сооружения M.: Стройиздат, 1976. 185 с. (rus)
7. Болотин В.В. Методы теории ветроятностей и теории надежности в расчетах сооружений. M.: Стройиздат, 1982. 351 с.
8. Коренев Б.Г., Рабинович И.М. Динамичесеий расчет зданий и сооружений. M.: Стройиздат, 1984. 303 с.
9. Бронштейн М.Ф., Бородачев Н.М., Блюмина Л.К. Динамический расчет на специальные воздействия. M.: Стройиздат, 1981. 215 с.
10. Реттер Е.И., Стриженов С.И. Аэродинамика зданий. M.: Стройиздат, 1968. 240 с.
11. Реттер Е.И. Архитектурно-строительная аэродинамика. M.: Стройиздат. 1984. 296 с. (rus)
12. Савицкий Г.А. Ветровая нагрузка на сооружения. M.: Стройиздат, 1972. с. (rus)
13. Симиу Е., Сканлан Р. Воздействие ветра на здания и сооружения. M.: Стройиздат, 1984. 360 с. (rus)
14. Дубинский С.И. Численное моделирование ветровых воздействий на высотные здания и комплексы. M.: 2010. 198 с. (rus)
15. Bitsuamlak G.T., Stathopoulos T., Bedard C. Numerical evaluation of turbulent flows over complex terrains. A review//Journal of Aerospace Engineering, 17(4), 2004. Pp. 135-145.
16. Blocken V., Stathopoulos T., Carmeliet J. CFD simulation of atmospheric boundary layer-wall function problems//Atmospheric Environment, 41 (2), 2007. Pp. 238-252.
17. Хи Сун Чой. Проектирование аутригерных систем /Хи Сун Чой, Гоман Хо, Леонард Джосеф, Невилл Матиас // Высотные здания. - 2013. - №5. - С. 98-101.
18. Хи Сун Чой. Проектирование аутригерных систем /Хи Сун Чой, Гоман Хо, Леонард Джосеф, Невилл Матиас //Высотные здания. - 2013. - №6. - С. 102-109.
19. Клепец О.Ю. Комплексное расчетное обоснование напряженно деформированного состояния высотных многофункциональных комплексов / Клепец О.Ю // Строительная механика и расчет сооружений. - 2006. - № 10. - С. 111-115.



